14 Henrietta Street - Tenement Museum

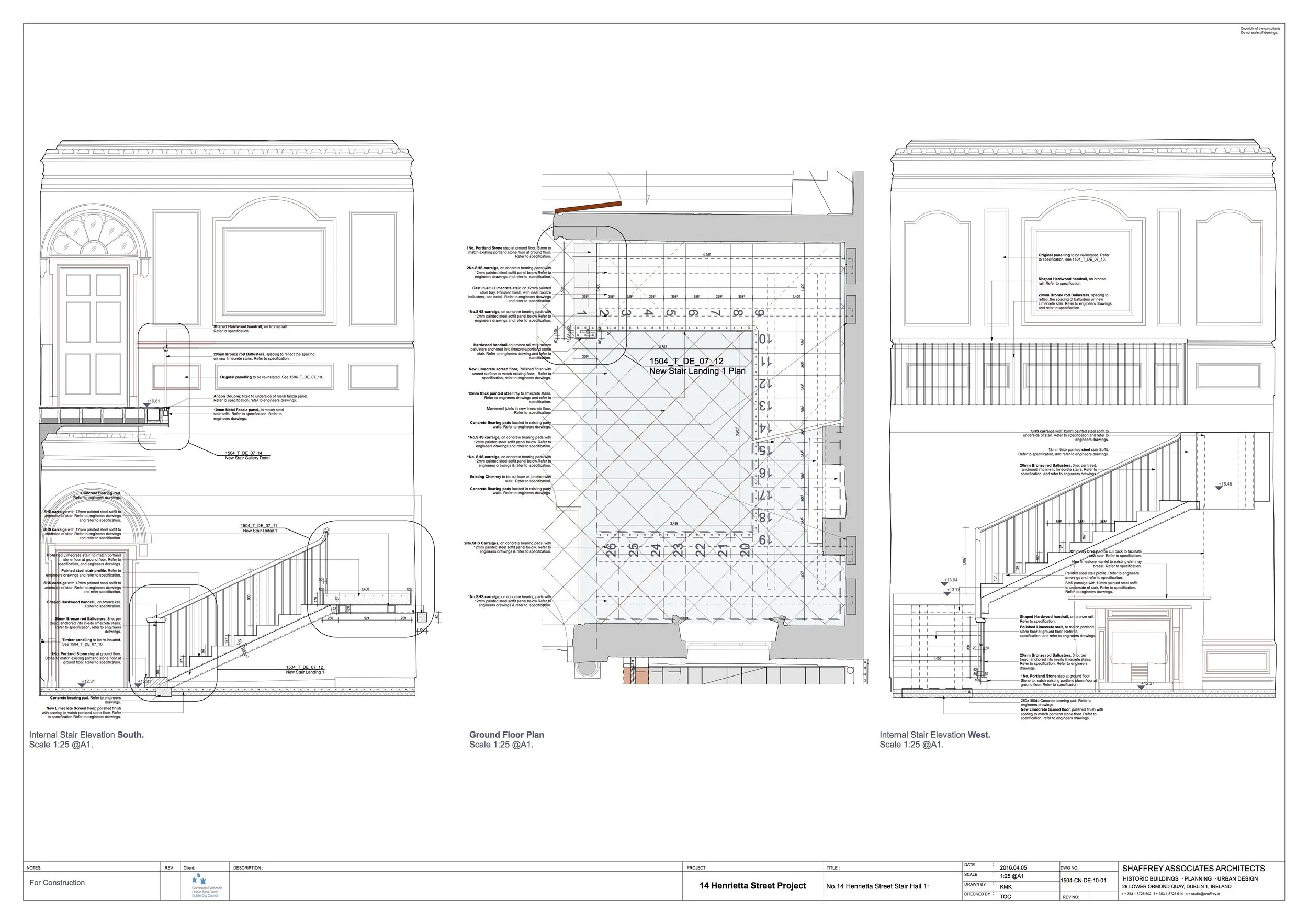
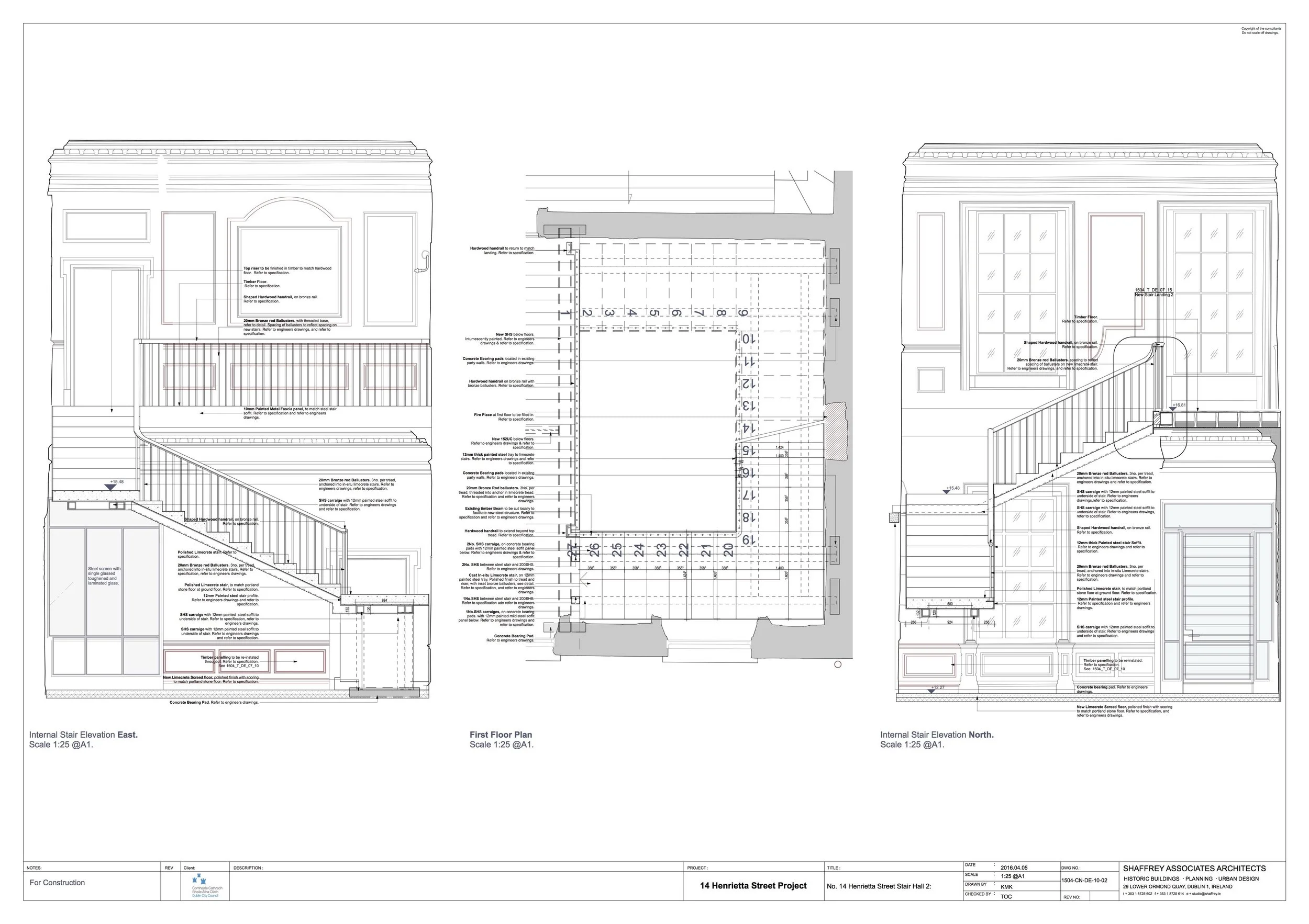
One of the principal concepts of the Henrietta Street Tenement Museum is ‘building as artefact’. Starting out with little or no physical collection, the house, with its many layers and vestiges of former occupation was a (the) primary artefact. In this project, the walls, floors, old gas pipes, 1970’s fireplaces, along with fragments of distemper, linoleum, wallpaper – all have stories to tell.

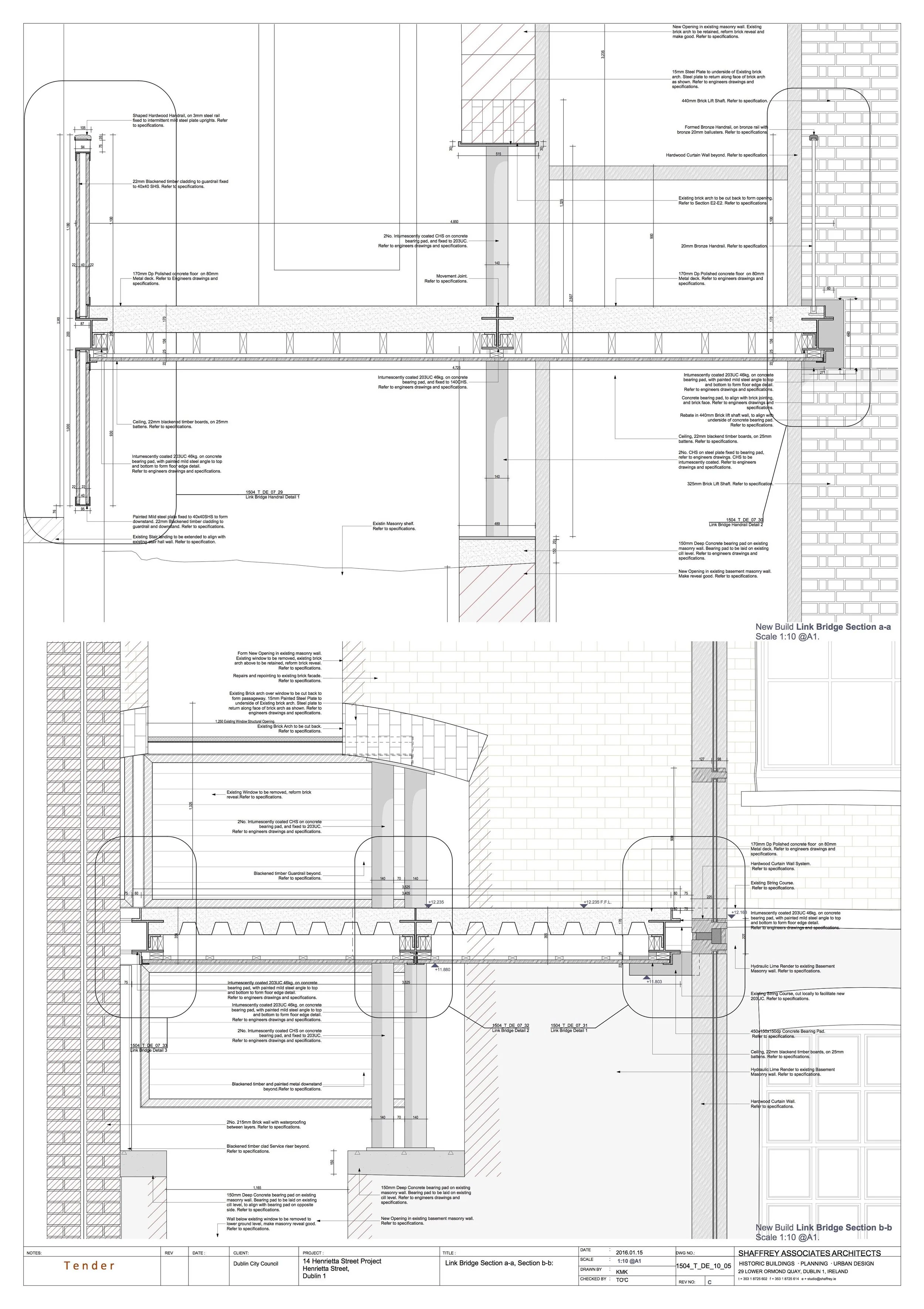
A major challenge of the project was to integrate all the essential services; fire, structure, infrastructure, into this rich library of memory. There are perhaps a few distinctive aspects of the project and then a few more which hopefully are of more wider and transferable value. The floor zone is works very hard in containing – discretely – the network of services; heating, structure and fire protection. Identifying a suitable location for the principal vertical services riser and planning and designing it was a key challenge. The use of wireless technology has helped in minimising chasing and loss of finishes and fabric. Both during design stage and construction, very close collaboration between architect and engineers and between main contractor and the M&E sub-contractors has been intense and essential. Identifying a coherent architectural vision and then sustaining it as the curatorial vision evolved and influenced the design decision created a very unique dynamic.

Client
Dublin City Council

Location
14 Henrietta Street, Dublin 1

Completed
August 2017

Awards
RIAI Silver Medal for Conservation and Restoration 2017-2019
European Museum of the Year Awards, Silletto Prize 2020 RIAI Special Jury Award 2018 RIAI Awards 2018, Winning Project - Adaption and Re-use Shortlisted - Mies van der Rohe Award, 2019

Photo Credit
Paul Tierney

Next
Next

14 Clarendon Street